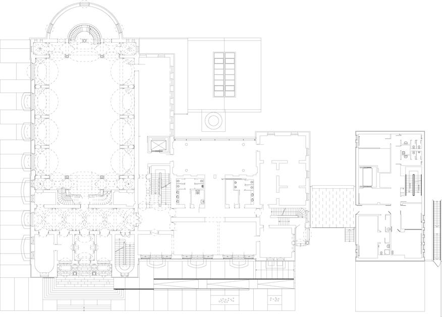
The basic principle of the new arrangement is based on the intertwining and contrast of the old and the new. Everything historically significant forms a framework absorbing the new, the contrast between the historical substance and contemporary furniture is part of the work with the monument. The conversion of the Neo-Renaissance Spa (P. P. Brang, 1901) includes spaces for permanent and variable exhibitions of the Regional Gallery in Liberec.Read more
The pool space is unfolded, the original pool tub at the ground floor level is covered by a sandblasted glass floor on a steel structure, which allows secondary lighting of another high exhibition space at the yard level. The exhibition spaces in the reconstructed historical spa are complemented by a new depository building at Masarykova Street.
Awards:
Award of the Club for Old Prague for a new building in a historical environment 2013
Grand Prix of Architects 2014
National Architecture Prize
Construction of the Year of the Liberec Region 2014 - Main Prize of Doc. Ing. arch. Karel Hubáček Dr.h.c.
Nomination for Construction of the Year 2014
| Location | Liberec, CZ |
|---|
| Type | Civic & Cultural |
|---|
| Status | Completed |
|---|
| Year | 2013 |
|---|
| Client | Statutary City of Liberec |
|---|
| Project Architect | Jiří Buček |
|---|
| Project Director | Karel Novotný |
|---|
| Team | Josef Franc, František Bielik, Vlastimil Schneider, Petr Dolenský, Helena Hlávková, Filip Horatsche, Jan Duda, Petr Čihák, Jana Hlavová structural part: Zdeněk Dřevěný, Vít Šrámek greenery: Kateřina Tomanová |
|---|
| Area | 10400 m² |
|---|