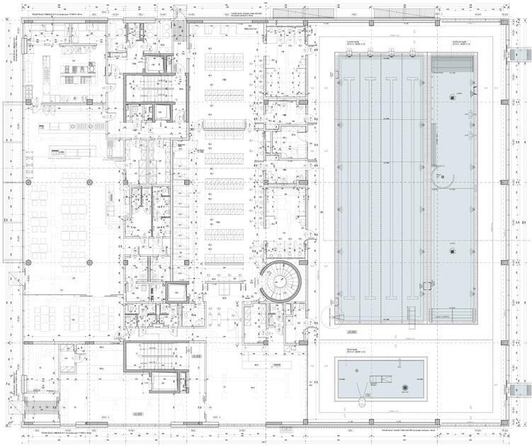
Urbanistically, the concept works with the allocation of the Centre function into two basic shapes, which together define public space ready for wide range of activities - public market, a meeting place, the Christmas markets. Both buildings - the sports hall and the swimming pool - have the same depth modulation, defining the square.Read more
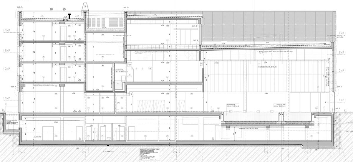
The sports hall integrates the basic hall space with grandstands and the service part with the locker rooms of athletes, the facilities of club teams, referees, offices and equipment. The pool building includes indoor swimming pool, wellness, fitness, restaurant and hotel. The Centre has an outdoor sun garden, tennis courts and beach volleyball courts.
| Location | Prague, CZ |
|---|
| Type | Leisure & Sport |
|---|
| Status | Completed |
|---|
| Year | 2020 |
|---|
| Client | City District Prague 17 |
|---|
| Project Architect | Jiří Buček |
|---|
| Project Director | František Bielik, Martin Mašek |
|---|
| Team | Josef Franc, Petr Dolenský structural part: Zdeněk Dřevěný permit procurement: Jiří Tauš |
|---|
| Area | 10400 m² |
|---|