The architectural concept works with the dynamics of a slight rotation of the basic shape and with exterior terraces (cutouts) with greenery oriented to the sunny part of the building. The proposed building is one of the three height dominants of the planned reconstruction of the AVIA Letňany area. The new building will become an entrance "lighthouse" to 60 hectares of land, in which a new part of the city will gradually be created.Read more
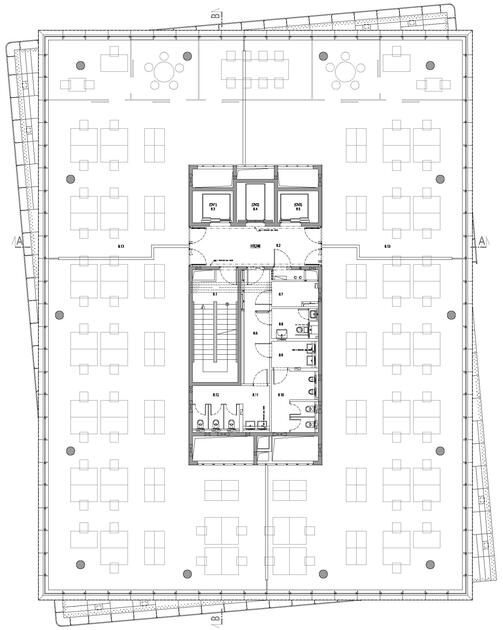
We designed the main facades of the building with a markedly horizontal character, supporting the dynamics of the house. The proposed material of non-bearing facade is metal and non-reflective glass. The building has 14 above-ground and 2 underground floors. The floor dimensions are 34 x 26 meters, the building height reaches 54 meters.
| Location | Prague, CZ |
|---|
| Type | Commercial |
|---|
| Status | Complete design from study to construction documentation |
|---|
| Year | 2011 |
|---|
| Client | Odien Group |
|---|
| Project Architect | Irena Švarcová, Jiří Buček |
|---|
| Project Director | Jiří Tauš, František Bielik |
|---|
| Team | Matin Mašek, Josef Franc structural part: Zdeněk Dřevěný |
|---|
| Area | 18100 m² |
|---|