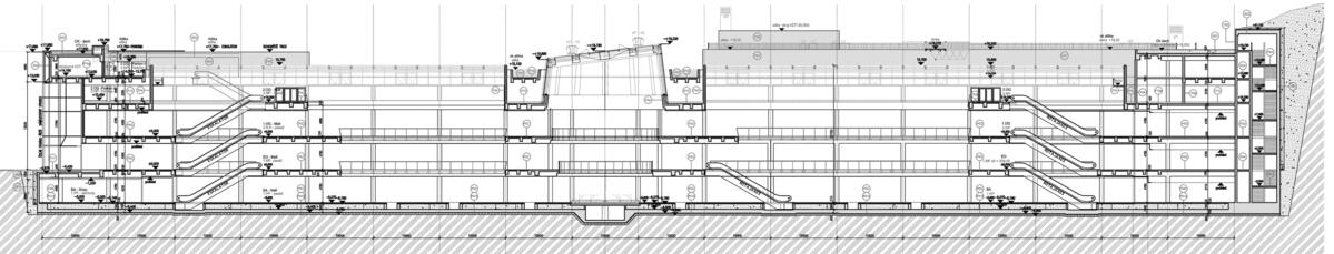
Obchodní a společenské centrum situované v centru města poblíž dopravního terminálu. Unikátní řešení využívá konfigurace svažitého pozemku a ukrývá dvě třetiny hmoty budovy pod úrovní terénu. Nejvyšší parkovací podlaží je zakryto masivní střešní konstrukcí umožňující provedení parkové úpravy plynule navazující na okolní terén.Číst více
Fasáda vstupní části je navržena z Profilitu - je polotranslucentní jako kostka ledu, s večerním programovatelným barevným nasvícením.
| Místo | Liberec, ČR |
|---|
| Typ | Komerční |
|---|
| Status | Kompletní projekt od studie po realizační dokumentaci |
|---|
| Rok | 2009 |
|---|
| Klient | ECE projektmanagement |
|---|
| Architekt | Jiří Buček, Jan Kadlas |
|---|
| Vedoucí projektu | Jiří Tauš |
|---|
| Tým | Vlastimil Schneider, Josef Franc návrh zeleně: Kateřina Tomanová |
|---|
| Plocha | 35000 m² |
|---|