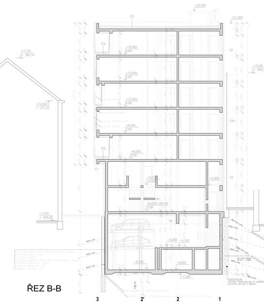
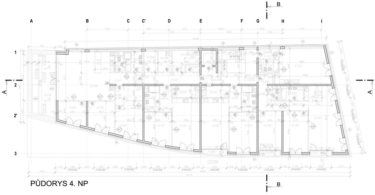
The apartment building with retail space on the ground floor is designed in a gap in the historic city center. The plot is located in the Liberec City heritage zone at the intersection of Jezdecká Street with Moskevská Street. The building completes the missing corner of the traditional city block in the center of Liberec.Read more
The basic visual character of the building is based on a regular grid of windows and loggias. The elementary grid of the windows is rhythmically disturbed by the overhanging layer of the facade in the stylized form of a volatile translucent veil. The overhanging facade consists of a combination of fixed and mobile shading panels. The purpose of movable panels in front of large-format windows to living rooms is to allow residents to regulate their own privacy and influence heat gains.
| Location | Liberec, CZ |
|---|
| Type | Residential |
|---|
| Status | Ongoing |
|---|
| Year | 2021 |
|---|
| Client | Nisa Building |
|---|
| Project Architect | Jiří Buček, Andreas Dzikos |
|---|
| Team | Miroslav Španihel, Aleš Patrman structural part: Vladislav Bureš |
|---|
| Area | 3800 m² |
|---|