Senior Housing
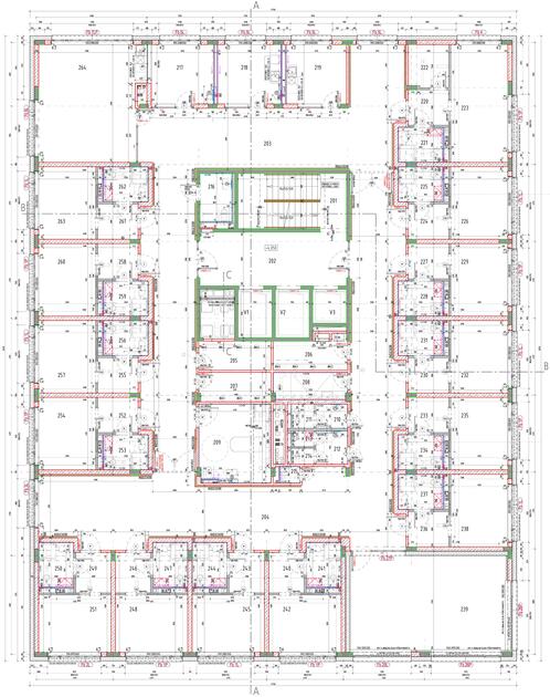
The center for seniors consists of a pair of buildings where, in addition to accommodation units, common areas, a kitchen, a dining room and a laundry room, there is also the necessary facilities for social service providers.Read more
The center for seniors consists of a pair of buildings where, in addition to accommodation units, common areas, a kitchen, a dining room and a laundry room, there is also the necessary facilities for social service providers.Read more