Centrum urgentní medicíny je první etapa modernizace KNL v Liberci, zahrnuje všechny podstatné emergentní provozy. Cílem první etapy modernizace Krajské nemocnice je po desetiletích parciálních úprav nastartování nové koncepce areálu, která přispěje k odstranění provizorií a extrémní roztříštěnosti stávajícího areálu a podpoří centralizaci provozů.Číst více
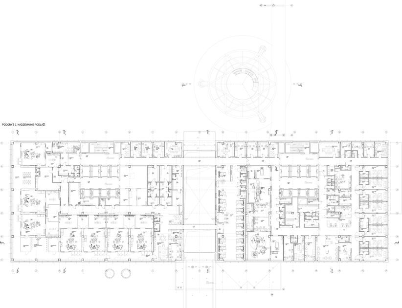
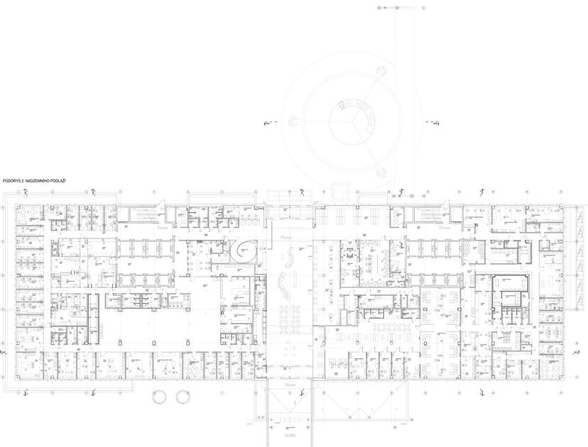
Projekt Centra urgentní medicíny soustředí obory, které poskytují urgentní a intenzivní péči do jednoho celku a vytvoří jedno kontaktní místo akutního a emergentního příjmu pro všechny pacienty bez rozdílu závažnosti jejich stavu s přímou vazbou na operační sály, diagnostické vyšetřovny a jednotky intenzivní péče.
| Místo | Liberec |
|---|
| Typ | Veřejné & kulturní |
|---|
| Status | Probíhající |
|---|
| Rok | 2021 |
|---|
| Klient | Krajský úřad Libereckéko kraje |
|---|
| Architekt | Jiří Buček, Michal Juha, Jan Topinka |
|---|
| Vedoucí projektu | Martin Mašek |
|---|
| Tým | Petr Dolenský, Josef Franc, Jiří Chmelík, Jaroslav Pflégr, Helena Hlávková, Iva Erlebachová, Klára Vlčková statika: Zdeněk Dřevěný, Vít Šrámek, Jan Hetver |
|---|
| Plocha | 53000 m² |
|---|