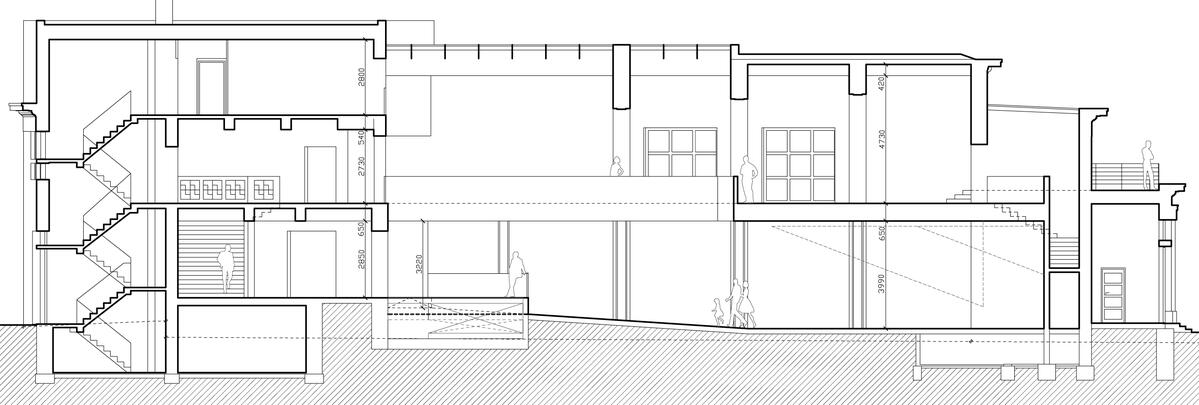
Konverze kina (Bio invalidů) z 30. let 20. století (Karel Salač) pro muzeum automobilových veteránů. Vlastní podstata nového uspořádání je založena na prolínání a kontrastu starého a nového. Záměrem bylo přijmout historický kontext domu, zachovat vše důležité a podstatné z památkového hlediska a navrhnout možné úpravy, které umožní historickému objektu kina pokrýt všechny nároky, které se kladou na současný provoz muzea automobilů.Číst více
Podstatnou částí konverze „Bio invalidů“ je vložení expozičního patra do hlavního prostoru kina, které umožní vystavit 35 automobilů v hlavním expozičním prostoru. Vložené podlaží má formu galerie, střešní světlík nad centrální částí zabezpečí i přirozené denní osvětlení. Exteriér hlavní části kina zůstává v původním historickém výrazu, ve snížené servisní jihozápadní části navrhujeme střešní nástavbu s expozičním café do ulice Trávnice a bytem do ulice Krajířovy.
| Místo | Turnov, ČR |
|---|
| Typ | Veřejné & kulturní |
|---|
| Status | Dokončené |
|---|
| Rok | 2025 |
|---|
| Klient | soukromý investor |
|---|
| Architekt | Jiří Buček, Jiří Chmelík |
|---|
| Tým | Josef Franc statika: Vít Šrámek |
|---|
| Plocha | 1850 m2 |
|---|