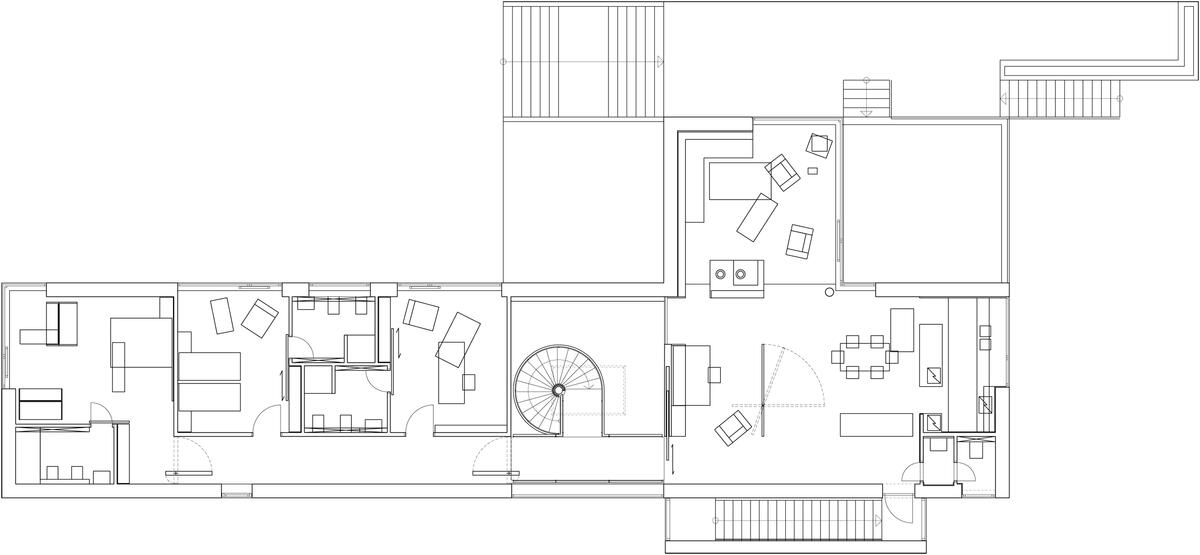
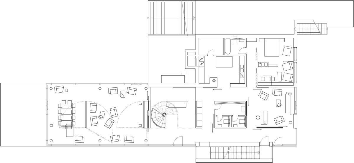
The site is within the picturesque part of Buda near the Istenhegy hill. Two themes determine the character of the building. The first is the building's location across the view from the entrance part of the plot and the main entrance in the axis of arrival. The second topic was laying the prism of the ambassador's apartment above the transparent representation spaces. The public zone leads to the garden and south of the residence, then the private part with terraces, swimming pool and gazebo.Read more
The structure consists of a reinforced concrete skeleton. A three-dimensional box structure renders the six-meter console above the representational spaces. The ambassador's apartment's prism has a wooden cladding of red cedar; it is used in combination with the visible concrete of the body and protruding parts and the transparent glazing of the representative part.
| Location | Budapest, HU |
|---|
| Type | Residential |
|---|
| Status | Completed |
|---|
| Year | 2000 |
|---|
| Client | Ministry of Foreign Affairs of the Czech Republic |
|---|
| Project Architect | Jiří Buček |
|---|
| Team | Miroslav Španihel, Josef Franc structural part: Zdeněk Patrman interior design: Ivan Kroupa |
|---|
| Investment | 39 mio CZK |
|---|
| Area | 650 m² |
|---|