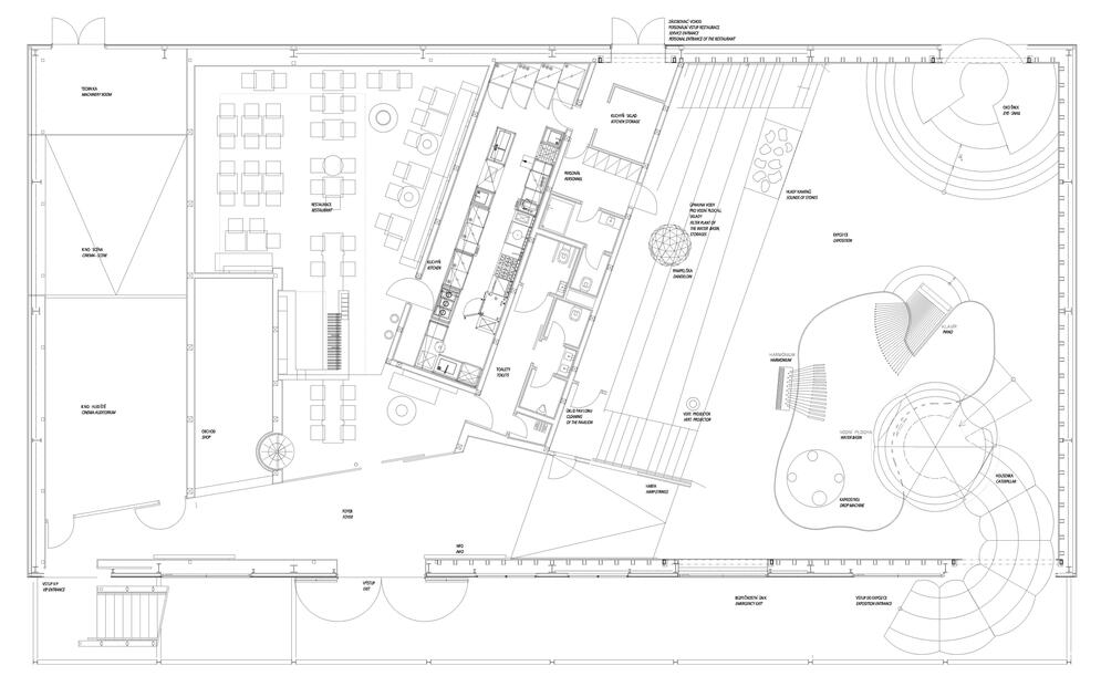
Koncept vytváří prostor pro primární poslání pavilonu - zajistit kvalitní výstavní scénu. Stupňovité hlediště arénového typu se samo stává prostorem instalace dalších výstavních objektů umožňujících aktivní zapojení návštěvníků a přispívá tím k rozostření klasického vnímání – aktivní scéna a pasivní hlediště.Číst více
Hlavní předsazená fasáda pavilonu reflektuje hravost expozice a nabízí soudobý design vytvořený velmi lapidárními prostředky. Navrhované řešení - zvlněná plocha z mnohonásobně se opakujícího prvku vzdáleně připomíná ladné křivky i mnohočetné struktury ne nepodobné přírodním motivům. Návštěvník je vtažen propojením hlediště a scény do děje – hry. Zvukové a vizuální objekty renomovaných výtvarníků stírají rozdíly věku a postavení, provokují aktivitu a kreativitu. Stupňovitá aréna nabízí zároveň posezení a ztišení v mírně zešeřelém prostoru s drobnými světelnými průduchy.
| Místo | Aichi, JPN |
|---|
| Typ | Veřejné & kulturní |
|---|
| Status | Dokončené |
|---|
| Rok | 2005 |
|---|
| Klient | Ministerstvo zahraničních věcí ČR |
|---|
| Architekt | Jiří Buček, Bára Škorpilová |
|---|
| Vedoucí projektu | Josef Franc |
|---|
| Tým | Martin Mašek statika: Vít Šrámek expozice: Petr Nikl |
|---|
| Plocha | 1400 m² |
|---|